SketchBOXデザイン事務所
SCROLL PAGE TOP
NEWS & BLOG

スタートはここから・・・想いをカタチにする「手描き」の魔法

2026.04.06

なぜ、あえて「手描き」なのか?

移転、リニューアル、新規開院……。
理想の歯科医院をカタチにしたいけれど、日々の診療や経営に追われ、なかなかイメージがまとまらない。そんなお悩みはありませんか?

どうぞ、その想いをそのままお聞かせください。
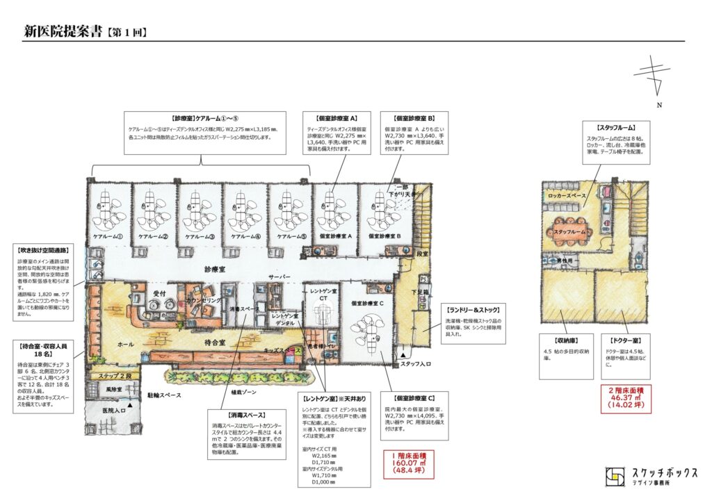
当事務所のファーストプレゼンは、一本一本の線に温かみを込めた「手描き図面」から始まります。

CADの図面が「情報」として脳に届くのに対し、手描き図面は「雰囲気」として心に響きます。
「これだよ、これ!」「ここで働くイメージが湧いてきた」
院長先生やスタッフの皆様から、そんな嬉しいお声をいただくのが私たちの誇りです。

柔らかいタッチで描かれた未来図を眺めながら、一緒に理想をブラッシュアップしていきませんか?
印象に残る温かな表現で、理事長、院長先生、スタッフの皆さんのビジョンをカタチにします

日常診療を続けながら、理想の開院を。
お問い合わせ・ご相談はこちら ]
※原則2営業日以内にご返信いたします
※まだ構想段階という先生も、お気軽にご相談ください